
Ein neuer Baustein für den Petrisberg
Im Jahr 2018, nach langjähriger Mitwirkung an der städtebaulichen Konzeption, wurden Roger und Sabrina Wirtz mit ihrem in Frankfurt am Main ansässigen Büro ROSA Wirtz Architektur für die Planung beauftragt. In fünf Gebäuden entstanden 81 Wohnungen über einer Tiefgarage, um den ruhenden Verkehr im öffentlichen Raum zu vermeiden. Der Wohnungsmix ist vielfältig und deckt unterschiedliche Haushaltsstrukturen sowie Erwerbssituationen ab: kompakte, kleine Wohnungen, altengerechte Angebote und reihenhausartige Typen in Form von Maisonette-Wohnungen.
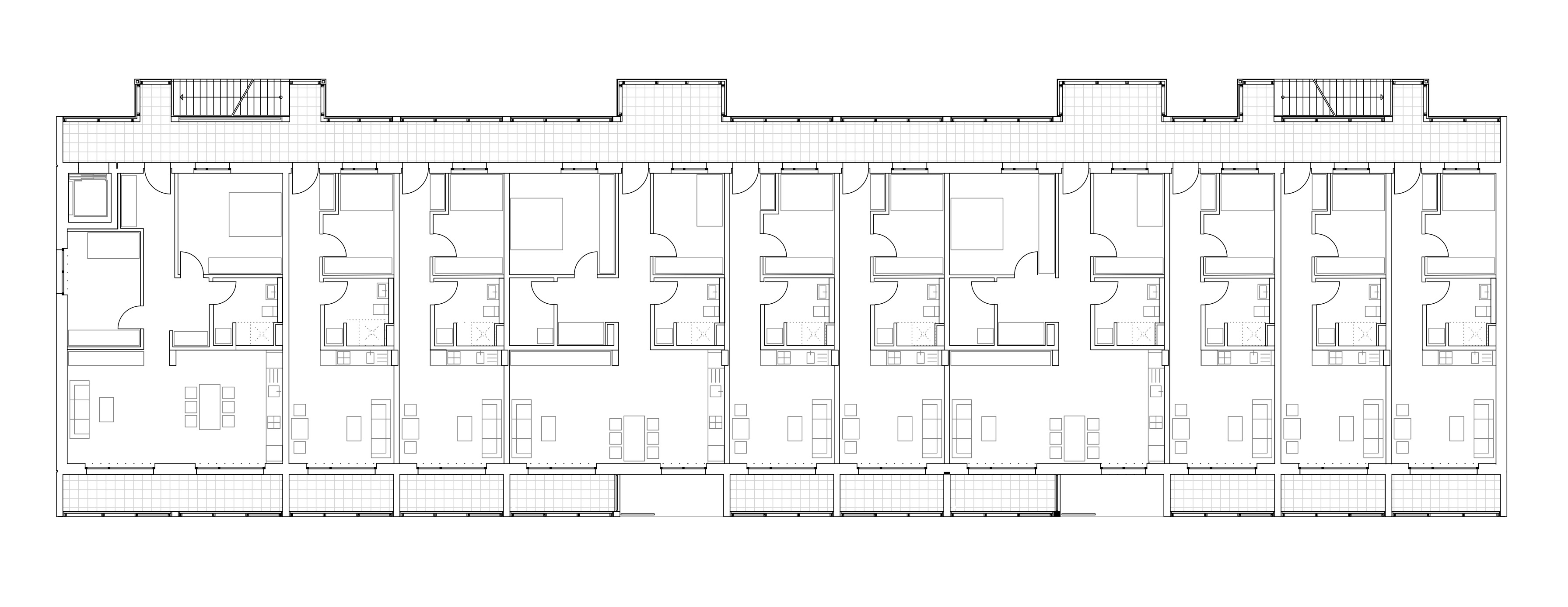
Von Scheiben und Achsen
Diese Flexibilität spiegelt sich auch im Wohnriegel wider, den die Architekt*innen in drei Scheiben aufteilten: Zwischen einer Loggienzone zur Straßenseite und einem hofseitigen Laubengang liegt der Wohnraum. Mit ihren wechselnden Breiten und Höhen deuten die Loggien bereits das Prinzip im Inneren an. „Wir haben den langen Baukörper in 13 Achsen unterteilt. Jede Achse beinhaltet eine Wohnung mit Küche und Bad, einen Freisitz nach Westen und ist über den Laubengang zum Hof erreichbar“, erklärt Wirtz. Die Wohneinheiten können je nach Bedarf horizontal und im Grunde auch vertikal miteinander verbunden werden. Grundlage dafür ist die robuste Grundstruktur: tragende Außenwände aus Kalksandstein mit einem innenliegenden Stützensystem aus Stahlbeton. ROSA trennten das Tragwerk bewusst vom Ausbau, die Haustechnik wurde mit einem Schacht pro Wohneinheit mittig angelegt. „Diese klare Trennung von Tragwerk, Ausbau und Haustechnik hat die Planung deutlich vereinfacht und wird auch zukünftige Umbauten mit vergleichsweise geringem Aufwand möglich machen“, so die Architektin.
Projekt einreichen oder kommentieren.
Melden Sie sich an oder registrieren Sie sich, um eigene Projekte einzureichen oder diesen Artikel zu kommentieren.