
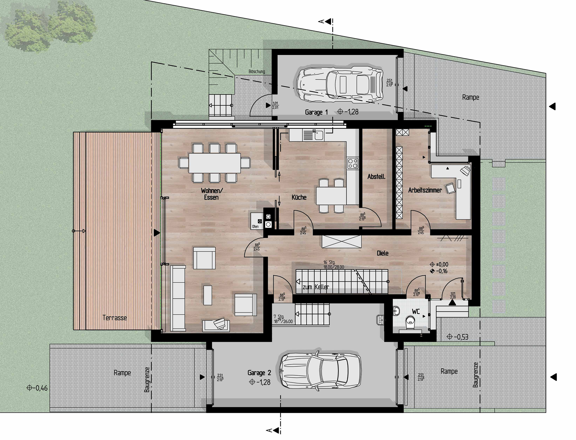
Auf den ersten Blick präsentiert sich das ca. 660 m² große Grundstück im münsterländischen Warendorf eher schlicht. Es liegt mitten in einem Neubaugebiet, umringt von konventionell gebauten Einfamilienhäuser, die vorwiegend mit Satteldächern errichtet worden sind. Doch die Bauherrenfamilie erkannte schnell das Potenzial des Baugrundstückes. „Wir haben den Bauplatz sofort sehr gemocht. Eine Fußgängerzone mit zahlreichen Einkaufsmöglichkeiten, Schulen, Kindergarten und ein Krankenhaus mit Ärztezentrum sind schnell erreichbar. Auch die Süd-Westlage ist optimal. Ebenso der Bezug zur Natur. Am Ende des Grundstückes befinden sich Laubbäume, ähnlich einer Allee, die längs vor uns verläuft“, erklärt die Bauherrin. „Wir haben uns natürlich auch intensiv mit der Gestaltung des Hauses beschäftigt. Ein klassisches Satteldach kam für uns als vierköpfige Familie schon allein aufgrund des gewünschten Raumprogrammes nicht infrage“, ergänzt der Bauherr.
Mit dem Architekten Oliver Spiekermann, Beelen, fanden die Bauherren den richtigen Partner. Die Chemie stimmte schon beim ersten Treffen.
Projekt einreichen oder kommentieren.
Melden Sie sich an oder registrieren Sie sich, um eigene Projekte einzureichen oder diesen Artikel zu kommentieren.