Ein Haus - ein Statement!

Haus V ist ein großes Haus auf kleinem Grundstück für schmales Geld. Es ist außen sehr rot und innen sehr roh. Es ist gut gedämmt und mit Grundwasserwärmepumpe und Lüftungsanlage sparsam im Unterhalt. Haus V ist dabei kein "Öko"-Haus, sondern einfach und schlau.

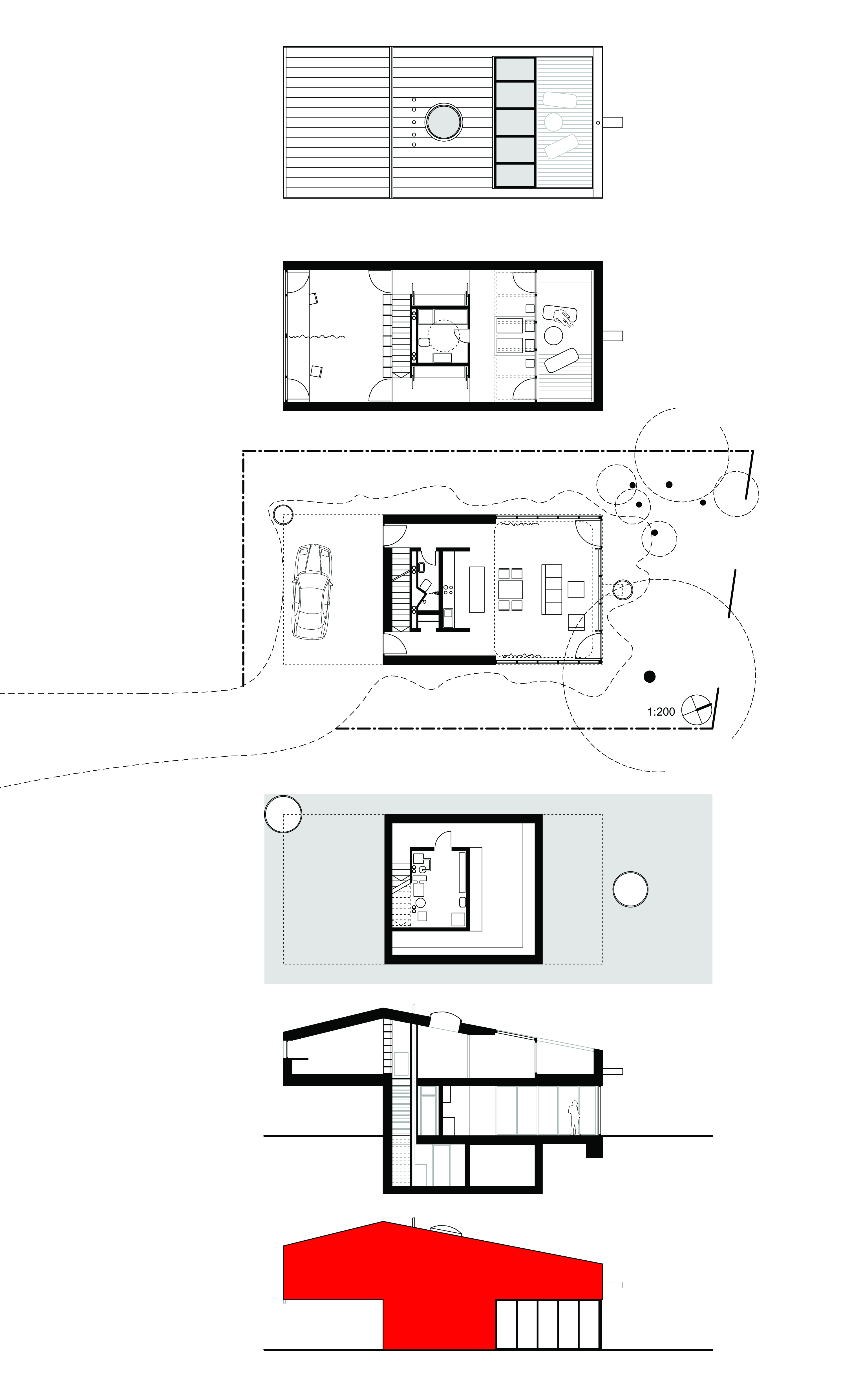
Man kommt von Süden. Die Autos werden nicht in Garagen versteckt, sondern unter der weiten Auskragung trocken und schattig präsentiert. In der Auskragung ist das große Arbeitszimmer. Darunter sind die Hauseingänge: rechts der Haupteingang und links ein Shortcut ins Dachgeschoss.

Das 16 Meter lang gestreckte Wohnhaus am Stadtrand von München ist hauptsächlich nach Norden ausgerichtet: Das Wohnzimmer befindet sich im Norden, es öffnet sich an drei Seiten mit raumhohen Glasflächen zum Garten. Man kann hier gut die symmetrische Grundrissstruktur von Haus V erkennen. Geradezu ehrwürdig erinnert der loftige Wohn-Ess-Koch-Raum an die Organisation einer Basilika. Die zentrale Küche ist der Hochaltar unserer Zeit.

Im Norden blickt man durch Tannen und den großen Apfelbaum in die wild wuchernde Weite: Das Grundstück schließt an das Gelände der Stadtwerke an, das wegen dort verlaufender Heiztrassen nie bebaut werden wird. Englische Herrensitze wurden auch oft nach Norden ausgerichtet: Die Landschaft soll in strahlendem Südlicht erscheinen.

Direkt über dem Wohnzimmer, im Dachgeschoss, liegt das Schlafzimmer und daran anschließend eine uneinsehbare Sonnenterrasse. Das Schlafzimmer erinnert an einen Wintergarten: Geschützt von gutem Isolierglas kann man im Bett liegen und am Himmel Sternschnuppen, Flugzeuge und Schneeflocken beobachten.

Die äußere T-Form von Haus V spiegelt sich auch im Inneren wieder: Die großen Räume docken von zwei Seiten am dicht gepackten Kern in der Gebäudemitte an. Der Kern fasst die einläufigen Treppen, zwei Bäder und zwei Ankleiden, die Bibliothek und einen bis zum Keller durchlaufenden Installationsschacht. Im Keller ist viel Stauraum und in einem extra Raum, quasi als Schaltzentrale oder allerheiligste Krypta, die moderne Haustechnik versammelt. Die Steuerung der Technik erfolgt an einem Touchscreen oder mobil per iPhone und Internet.

Auch baurechtlich ist Haus V eine besondere Leistung: Die strengen Vorgaben der Gemeinde konnten nur eingehalten werden, da das Dachgeschoss formal ein Satteldach ist und außerdem nach dem Gesetz gerade so kein „Vollgeschoss“. Auch ganze Abstandsflächen werden an drei Flanken geschickt umgangen.

Haus V ist modern, aber nicht perfektionistisch: Es ist außen skulptural und zeichenhaft, innen rotzig, ruppig, roh und nicht wie sonst üblich glatt, geschleckt, gähnend langweilig. Die Reinheit der Materialien bestimmt den Charakter des Hauses. Sichtbetondecken, Zementestrich und das Mauerwerk aus Kalksandstein besitzen nicht nur konstruktionsbedingte Bedeutung. Sie wirken zugleich als gestalterische Oberflächen im Innern. Selbst die großformatigen Kalksandsteine des KS-QUADRO Bausystems wurden lediglich gestrichen und als Sichtmauerwerk ausgeführt.

Haus V ist menschlich. So sind nicht unbedingt die lässigen Ausführungsdetails bei Haus V spektakulär, sondern das Gesamtkonzept: ein harmonischer Gleichklang von Volumen, Schnitt, Fassaden, Tragwerk, technischer Ausstattung und innerer Organisation.

Jakob Bader Architektur

Jakob Bader

Das Büro Jakob Bader Architektur, zentral im Münchner Stadtteil Maxvorstadt gelegen, deckt das gesamte Leistungsspektrum eines klassischen Architekturbüros ab: Architektur und Innenarchitektur, Beratung, Entwurf, Genehmigungsplanung, Ausführungsplanung, Ausschreibung, Bauleitung.

Jakob Bader und sein Team arbeiten mit Leidenschaft an unterschiedlichen Bauvorhaben. Sie sind stark in der Konzeption und in der Umsetzung von Bauprojekten, vom Innenausbau bis zum Städtebau. Die Strategie des Architekturbüros ist - auf der Basis einer gründlichen Analyse der Aufgabe - die systematische Erarbeitung einer originellen Konzeption und sodann deren konsequente und präzise geplante Umsetzung.

Jakob Bader Architektur: Das sind Architekten, das sind Innenarchitekten - das sind Projektentwickler: Die Kernkompetenz und häufig auch der Arbeitsschwerpunkt von Jakob Bader Architektur ist die Entwicklung besonders anspruchsvoller innenstädtischer Bauaufgaben, auch im Bestand, Leistungsphase 1-5.

Bauaufgabe
Wohnungsbau
Lage
Unterföhring
Architektur/Bauplanung
Jakob Bader Architektur
Bauherr
Privat
Grundfläche
190.00m²
Fertigstellung
2008

ARTIKEL TEILEN

Projekt einreichen oder kommentieren.

Melden Sie sich an oder registrieren Sie sich, um eigene Projekte einzureichen oder diesen Artikel zu kommentieren.

Alle Projekte auch hier auf unserem Pinterest-Kanal