Architektonische Transformation – von der Lagerhalle zum Kulturzentrum.

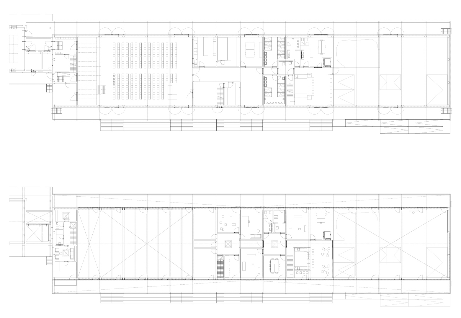
Eine leerstehende Güterhalle von 85 Metern Länge und direkt an den Gleisen gelegen wird zu einem großen Kulturzentrum mit Konzertsaal, Proberäumen, Bars, Büro, Skatepark, Boulderbereich und Trendsporthalle ausgebaut. Während die Gebäudehülle lediglich repariert und gestrichen wird, geraten Unterteilung und Auskleidung des Inneren zum Hauptthema.

Nach dem Umbau: Die architektonische Transformation wird durch die renovierte Gebäudehülle wahrnehmbar.

Vor dem Umbau: Die leerstehende Lagerhalle bietet genügend Raum für das anspruchsvolle Nutzungskonzept.

Einem Haus im Haus ähnlich, zonieren Sichtmauerwände aus Kalksandstein und unbehandelte Betondecken das mannigfaltige Raumprogramm.

Konzertsaal und Skatehalle besetzen die Enden des langgezogenen Riegels.

Konzertsaal und Veranstaltungshalle.

Skatepark.

Ein zweistöckiger Versorgungskern in der Gebäudemitte beherbergt alle vorgegebenen Nutz- und Nebenräume, die neben dem Backstagebereich die gleichzeitige Bespielung beider Hallen ermöglichen.

Foyer mit Zugang zur Veranstaltungshalle.


Individualität durch Materialität.

Gemäß der Parole „außen Farbe – innen Material“ bleiben sämtliche Oberflächen in allen Räumen unverputzt und werden allein durch die wenigen vorgefundenen und neu verwendeten Baustoffe strukturiert. Gleiches gilt für die Gebäudetechnik, die offen an Decken und Wänden geführt wird. Ziel war es, den späteren Benutzern eine ebenso robuste wie unfertige Architektur zu übergeben, die eigeninitiativer Aneignung und Ausgestaltung nicht im Wege steht, allzu modische Farben und Formen meidet und so zu einem subkulturellen Möglichkeitsraum wird.

Versorgungstrakt im Backstagebereich.

Bewirtungsbereich innerhalb der Veranstaltungshalle.

Blick von der Rampe am Gleis in die Skatehalle.

Auch die Sanitärräume ordnen sich dem Gestaltungskonzept unter.

Die Räume überzeugen durch ihren Purismus gepaart mit maximaler Funktionalität.


Solide und verlässlich.

Die Komplexität des Nutzungskonzepts und die damit einhergehenden hohen baulichen Anforderung an Tragfähigkeit, Schall- und Brandschutz konnten ganzheitlich durch den Einsatz von Mauerwerk aus Kalksandstein gelöst werden. Neben der bauphysikalischen Leistungsfähigkeit des Wandbaustoffs spielte auch die Ästhetik des Materials eine entscheidende Rolle. Der weiße Mauerstein harmoniert perfekt zu der vorhandenen Bausubstanz bestehend aus einer STB-Stützenkonstruktion. Zudem besitzt Kalksandstein die notwendige Robustheit, die das herausfordernde Nutzungskonzept benötigt – beispielsweise wenn im Veranstaltungsbereich rund 1.000 Menschen zu Technobeats feiern und tanzen.

Raumakustik innovativ gelöst.

Ein besonderes Gestaltungsmerkmal sind die Ornamentfriese in der Veranstaltungshalle. Als Stilelemente verleihen sie dem Raum eine einzigartige Ästhetik. Darüber hinaus erfüllen Sie eine wichtige funktionale Komponente: die um eine Meterstabbreite gedrehten, plastisch hervortretenden Kalksandsteine brechen den Schall und sorgen so für eine optimale Raumakustik. Dadurch konnte auf weitere Aufwendungen zur Verbesserung der Akustik, wie die zusätzliche Einbindung von Schallsegeln oder anderen schallabsorbierenden Flächen, verzichtet werden. Die innovative und gestalterisch anspruchsvolle Anordnung des Innensichtmauerwerks ist somit die Basis für ein perfektes räumliches Musikerlebnis.

Bauaufgabe
Nichtwohnungsbau
Lage
Ingolstadt
Architektur/Bauplanung
nbundm* architekten
Grundfläche
2030.00m²
Fertigstellung
2015

ARTIKEL TEILEN

Projekt einreichen oder kommentieren.

Melden Sie sich an oder registrieren Sie sich, um eigene Projekte einzureichen oder diesen Artikel zu kommentieren.

Alle Projekte auch hier auf unserem Pinterest-Kanal